iOS 12中,如何在打开一张CAD图纸时测量其长度

9158APP 0

在:iOS 12中,CAD图纸打开后可以测量长度吗?

苹果手机最近刚刚更新了iOS 12系统,那么当我们在该系统上打开CAD图纸时,如何测量图纸上某个部分的距离和长度呢?今天,我们就来看看如何在iOS 12中测量CAD绘图的长度。

第一步:首先打开手机上的CAD查看软件。如果您的手机上没有CAD查看软件,可以在爱思助手中搜索“CAD查看”并下载!

iOS  12中,如何在打开一张CAD图纸时测量其长度?

第二步:下载软件后,安装到手机桌面上,然后就可以打开使用了!

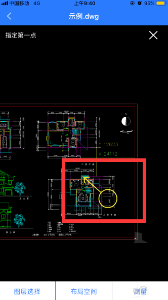
第三步:打开页面进入软件,选择需要查看的图纸,选择打开。如果绘图在电脑上,则需要在手机上打开“wifi传输”,使电脑和手机保持在同一个wifi下,然后在电脑桌面或文件夹中找到要查看的绘图并选择上传!然后选择您要查看的图形文件并选择将其打开。选择右下角的“测量”-“测量距离”选项,点击!

iOS  12中,如何在打开一张CAD图纸时测量其长度?

第四步:在图纸上选择要测量的位置!

iOS  12中,如何在打开一张CAD图纸时测量其长度?

好了,上面是:iOS 12中CAD图纸打开时测量长度的全部操作步骤你都学会了吗?